
LDLM 、LDMM、LDMS型系列离线清灰脉冲袋式除尘器
简介
离线清灰解决了常规脉冲袋式除尘器存在的“粉尘再附与失控”问题,大提高了滤袋清灰效果,从而提高过滤速度,即省清灰能耗和延长除尘滤袋寿命,是我们具有特色的专有技术产品。
本布袋除尘器特别适用于质轻、粒细、粘性粉尘的空气净化。分大、中、小三个系列。
技术性能
| 规格 | 过滤面积(m2) | 滤袋数量(条) | 分组数目 | 处理风量(m3/h) | 过滤风速(m/min) | 脉冲阀个数(个) | 压气量(m3/min) | 重量(T) | 布置形式 | |
| 型号 | ||||||||||
| LDML-Ⅰ2160 | 2160 | 1440 | 48 | 259200 | 2 | 48 | 1.1 | 81 | ||
| LDML-Ⅰ2520 | 2520 | 1680 | 56 | 302400 | 2 | 56 | 1.3 | 94 | ||
| LDML-Ⅰ2880 | 2880 | 1920 | 64 | 345600 | 2 | 64 | 1.5 | 107 | ||
| LDML-Ⅰ3240 | 3240 | 2160 | 72 | 388000 | 2 | 72 | 1.65 | 121 | ||
| LDML-Ⅰ3600 | 3600 | 2400 | 80 | 432000 | 2 | 80 | 1.82 | 134 | ||
| LDML-Ⅰ3960 | 3960 | 2640 | 88 | 475200 | 2 | 88 | 2.0 | 148 | ||
| LDML-Ⅰ4350 | 4350 | 2880 | 96 | 518400 | 2 | 96 | 2.2 | 161 | ||
| LDML-Ⅰ4680 | 4680 | 3120 | 104 | 561600 | 2 | 104 | 2.4 | 174 | ||
| LDML-Ⅰ5060 | 5060 | 3360 | 112 | 604800 | 2 | 112 | 2.55 | 188 | ||
| LDML-Ⅰ5400 | 5400 | 3600 | 120 | 64800 | 2 | 120 | 2.72 | 200 | ||
| LDML-Ⅰ5760 | 5760 | 3840 | 128 | 691200 | 2 | 128 | 2.9 | 212 | ||
| LDML-Ⅱ2880 | 2880 | 1440 | 72 | 345600 | 2 | 72 | 1.5 | 102 | ||
| LDML-Ⅱ3360 | 3360 | 1680 | 84 | 403200 | 2 | 64 | 1.75 | 119 | ||
| LDML-Ⅱ3840 | 3840 | 1920 | 96 | 460800 | 2 | 96 | 2.00 | 136 | ||
| LDML-Ⅱ4320 | 4320 | 2160 | 108 | 518400 | 2 | 108 | 2.25 | 152 | ||
| LDML-Ⅱ4800 | 4800 | 2400 | 120 | 576000 | 2 | 120 | 2.50 | 169 | ||
| LDML-Ⅱ5280 | 5280 | 2640 | 132 | 633600 | 2 | 132 | 2.75 | 185 | ||
| LDML-Ⅱ5760 | 5760 | 2880 | 144 | 691200 | 2 | 144 | 3.00 | 202 | ||
| LDML-Ⅱ6240 | 6240 | 3120 | 156 | 748800 | 2 | 156 | 3.25 | 219 | ||
| LDML-Ⅱ6720 | 6720 | 3360 | 168 | 806400 | 2 | 168 | 3.50 | 242 | ||
| LDML-Ⅱ7200 | 7200 | 3600 | 180 | 864000 | 2 | 180 | 3.75 | 252 | ||
| LDML-Ⅱ7680 | 7680 | 3840 | 192 | 921600 | 2 | 192 | 4.00 | 267 | ||
| LDMM225 | 225 | 200 | 5 | 33750 | 2.5 | 10 | 0.20 | 11.4 | 单列 | |
| LDMM270 | 270 | 240 | 6 | 40500 | 2.5 | 12 | 0.24 | 13.1 | ||
| LDMM315 | 315 | 280 | 7 | 47250 | 2.5 | 14 | 0.28 | 15 | ||
| LDMM360 | 360 | 320 | 8 | 54000 | 2.5 | 16 | 0.32 | 17.1 | ||
| LDMM405 | 405 | 360 | 9 | 60750 | 2.5 | 18 | 0.36 | 19.2 | ||
| LDMM450 | 450 | 400 | 10 | 67500 | 2.5 | 20 | 0.40 | 21.1 | ||
| LDMM540 | 540 | 480 | 2×6 | 81000 | 2.5 | 24 | 0.48 | 26.4 | 双列 | |
| LDMM630 | 630 | 560 | 2×7 | 94500 | 2.5 | 28 | 0.56 | 31.2 | ||
| LDMM720 | 720 | 640 | 2×8 | 108000 | 2.5 | 32 | 0.64 | 34.7 | ||
| LDMM810 | 810 | 720 | 2×9 | 121500 | 2.5 | 36 | 0.72 | 39.5 | ||
| LDMM900 | 900 | 800 | 2×10 | 135000 | 2.5 | 40 | 0.80 | 42.8 | ||
| LDMS50 | 50 | 50 | 5 | 7500 | 2.5 | 5 | 0.05 | 2.5 | 单列 | |
| LDMS60 | 60 | 60 | 6 | 9000 | 2.5 | 6 | 0.06 | 2.8 | ||
| LDMS70 | 70 | 70 | 7 | 10500 | 2.5 | 7 | 0.07 | 3.3 | ||
| LDMS80 | 80 | 80 | 8 | 12000 | 2.5 | 8 | 0.08 | 3.7 | ||
| LDMS90 | 90 | 90 | 9 | 13500 | 2.5 | 9 | 0.09 | 4.1 | ||
| LDMS100 | 100 | 100 | 10 | 15000 | 2.5 | 10 | 0.1 | 4.8 | ||
| LDMS120 | 120 | 120 | 2×6 | 18000 | 2.5 | 12 | 0.12 | 5.9 | 双列 | |
| LDMS140 | 140 | 140 | 2×7 | 21000 | 2.5 | 14 | 0.14 | 6.9 | ||
| LDMS160 | 160 | 160 | 2×8 | 24000 | 2.5 | 16 | 0.16 | 8.4 | ||
| LDMS180 | 180 | 180 | 2×9 | 27000 | 2.5 | 18 | 0.18 | 8.6 | ||
| LDMS200 | 200 | 200 | 2×10 | 30000 | 2.5 | 20 | 0.20 | 9.7 | ||
LDLM、LDMM、LDMS型系列离线清灰脉冲袋式除尘器
![]() |
![]() |
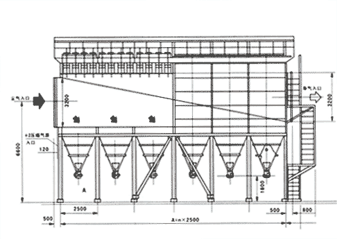
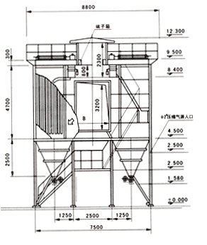
主要尺寸:![]() |
|
|
|