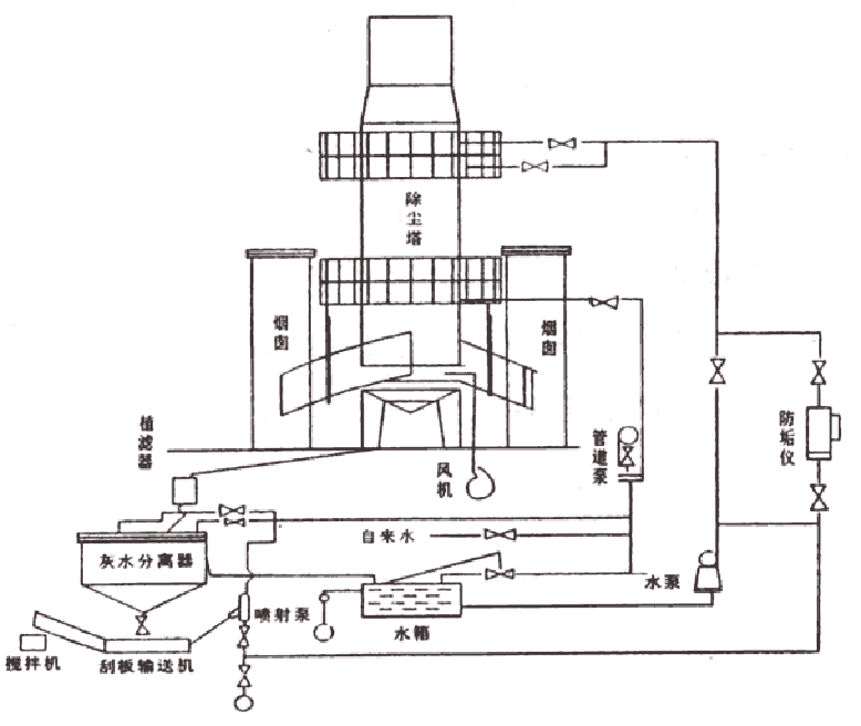
一、工作流程
BLS-8L湿式立窑除尘器由主体设备除尘塔、灰水分离器和辅助设备水泵、风机、电控操作台等组成,通过管线连接形成一个边续除尘、灰水分离、粉尘回收利用和水再循环的完整湿式除尘器系统。
二、运行机理
机立窑两个烟囱的废气在射流诱导加速下,分别切向进入除尘塔形成旋风,由于离心力的作用,大部分粉尘甩向器壁被内外水膜捕捉,完成第一级除法;气流在继续旋转上升的过程中,经喷淋洗涤,完成第二级除尘。除下的灰水混合物流入灰水分离器进行分离处理,经浓缩后的灰水从分离器下部排至刮扳输送机,再送入生料搅拌成球,实现回收利用。被澄清的水从分离器上部流出至中间水箱再经水泵进入除尘塔,经环形布置的喷嘴形成水膜,实现水的循环利用。所有设备集中于一电控操作台控制为了安全运行,电控系统采用了部分必要的声光报警装置。
三、主体设备结构与工作原理
除尘塔由外塔和副塔组成,均用不锈钢板制造。外塔直径2.4m,高12.7m。副塔直径0.5m,设于塔中央,喷淋洗涤用8个旋流喷嘴沿外塔下部环形布置。灰水分离器为普通钢板制造,内壁采用“TO"树脂防腐有效直径2.8m,全高4.3m,中央设有用减速机来牵动的集泥装置,集泥臂上的犁铧沉积的灰泥刮向中心而排出。当集泥臂因故住时,即可停止运行,同时发出声光警报,经处理后,仍恢复不了运行,应用了工清灰。集泥臂卡住是停电或长时间不排泥造成的,停电时间越久,故障越严重,因此要求用户配备双电源。
技术性能
| 项目名称 |
单位 |
技术数据 |
| BLS-8L除尘塔 |
|
|
| 最大处理废气量 |
m3/h |
60000 |
| 处理前允许最大含尘量 |
g/m3 |
≤12 |
| 正常工作下排放含尘浓度 |
mg/m3 |
150-600 |
| 循环水量 |
m3/h |
|
| 最大消耗水量 |
m3/h |
<0.1 |
| 处理废气允许最高温度 |
℃ |
<600 |
| HSF-12灰水分离器 |
|
|
| 处理能力 |
m3/h |
≤12 |
| 入口污水含尘浓度 |
g/l |
≤65 |
| 排出污水含尘浓度 |
g/l |
>600 |
| 澄清水含尘浓度 |
g/l |
≤0.2 |
| 功率 |
|
|
| 装机总容量 |
kw |
45 |
| 运行容量 |
kw |
34 |
|
BLS-8L湿式立窑除尘器
|
|
|
| 设备参数: |
 |
|