BLS-118L湿式脱硫除尘器

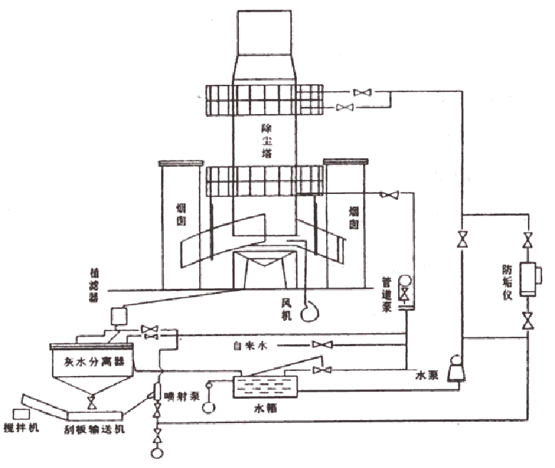
  BLS-Ⅱ-8L型双锥塔低阻高效湿式除尘设备和KFX-Ⅰ型快速泥水分离器根据多家水法除尘在使用中存在的问题,适应各种烧结方法,适应各种恶劣条件,并克服了其它水除尘无法克因难的水法除尘器,该系统最大特点:
  1、采用双锥形塔除尘,使泥水不接触筒壁,防止了粘灰造成的堵塞。
  2、喷水头装在尘区以外,使法与喷头不予接触,解决了因喷头堵塞水喷不出而影响吸尘效果问题。
  3、采用双塔直接装在立窑的两支烟囱上,避免了烟气行走弯路造成的阻力,因此设备阻力很低,无需用诱导风也    不会产生倒反烟现象。
  4、采用大水量除尘,促使循环水加快,这样水温较低,可解决管道结构、水蒸发量减少,并且除尘效果不好。
  5、全部使用循环水,绝对不往窑下排放和浪费水资源。
  6、收尘后排出的污水可通过泥水分离器将泥和水快速分离开,分离出来的泥以粥糊状连续排向双轴搅拌机,并且不需任何排泥专用设备,回收的泥浆100%回收利用,绝无排到地面而造成的二次污染问题。
  7、设备运行费低,耗电仅有9KW。
  8、投资少,与同类产品相比投资低10万元左右/台。因此,该技术在很大程度上都优越于现有的各种形式的水除尘器,并且保证除尘效果,明火窑粉尘排放浓度不超过150mg/m3,暗火窑不超过100mg/m3。
  技术性能
  1、处理能力为30000—60000m3/h;
  2、允许含尘浓度50g/m3以内;
  3、除尘效率≥99.6%以上;粉尘排放浓度低于国家二类地区执行标准;
  4、污水处理量20m3/h;
  5、耗水量0.2m3/h;
  6、耗电量9KW,需诱导风时为31KW;
  7、排出泥浆含水量50%;
  8、治理后可去除二氧化硫50%以上;
  9、循环水利用率100%;
  10、回收物料利用率100%;
  11、设备投资40-50万元/台套。

BLS-118L湿式脱硫除尘器
湿式脱硫除尘器
  • 查看与 | 
  • 除尘设备 | 
  • 湿式除尘器 | 
  • 脱硫除尘器 | 
  • 相关产品
  •  相关新闻
     推荐产品