除尘设备 > TAG标签 > 湿式除尘器
  • 湿式除尘器运行原理
  • 日期:2011-01-26 21:53:33 点击:297 好评:0
  • 湿式除尘器主要是在除尘器内含尘气体与水接触有如下过程,温暖粒与预先分散的水膜或雾状液相接触....
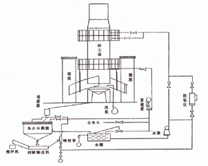
  • 湿式除尘器的结构
  • 日期:2011-01-26 21:52:37 点击:242 好评:0
  • 不同类型的湿式除尘器其结构虽有较大差别,但总体上一般由尘气导入装置,引水装置,水气接触本体,液滴分离器和污水(泥)排放装置组成....
  • 湿式脱硫除尘器工作
  • 日期:2010-09-17 11:52:06 点击:153 好评:0
  • 湿式脱硫除尘器采用双塔直接装在立窑的两支烟囱上,避免了烟气行走弯路造成的阻力,因此设备阻力很低,无需用诱导风也不会产生倒反烟现象....
  • 湿式除尘器的有点概述
  • 日期:2010-08-13 11:29:43 点击:78 好评:0
  • 湿式除尘器以水为媒介物,因此它适用于非纤维性的,能受冷且与水不发生化学反应的含尘气体,不适用于除去黏性粉尘....
  • 除尘设备产品图片
  • 日期:2010-01-24 18:18:16 点击:1713 好评:0
  • 除尘设备(袋式除尘设备,布袋除尘器,电除尘器)把粉尘从烟气中分离出来的设备叫除尘器或除尘设备....
  • BLS-118L湿式脱硫除尘器
  • 日期:2009-10-25 21:37:29 点击:162 好评:0
  • BLS-118L湿式脱硫除尘器和KFX-Ⅰ型快速泥水分离器根据多家水法除尘在使用中存在的问题,适应各种烧结方法适应各种恶劣条件,并克服了其它水除尘无法克因难的水法除尘器....
  • BLS-型-8L双塔湿式立窑除尘器KFX-I型快速水泥分离
  • 日期:2009-10-25 21:34:36 点击:96 好评:0
  • BLS-II型-8L双塔湿式立窑除尘器KFX-I型快速水泥分离器,特点是,采用双锥形塔除尘,使泥水不接触筒壁,防止了粘灰造成的堵塞....
  • XNT型XST型湿式脱硫除尘器、湿式除尘器
  • 日期:2009-10-25 21:24:11 点击:83 好评:0
  • XNT型湿式旋流强化凝聚脱硫除尘器,该湿式除尘器是集除尘.脱硫.自排或机械排灰及补水自控于一体的综合装置....
  • CTT型前置冲击湍球脱硫除尘器体净化器
  • 日期:2009-10-25 21:19:20 点击:193 好评:0
  • CTT型前置冲击湍球脱硫除尘器体净化器根据筛板,浮动体冲激,旋流,泡沫等多重原理,取其优越的特性构成,脱硫效率可高达90%以上....
  • 湿式脱硫除尘器概述
  • 日期:2009-10-25 14:44:14 点击:187 好评:0
  • 在湿法冲激除尘器中,水浴除尘器是最受欢迎一种结构简单,造价低,便于维护管理的除尘器.此种类型已历经十五年以来的运行时间,充分证明其运行的稳定可靠....
  • 211
  • 首页
  • 1
  • 2
  • 下一页
  • 末页
  • 推荐内容
  • DMC单机脉冲除尘器
    DMC单机脉冲除尘器的规格暂时有六个规格,每种规格又可分为...
  • 滤袋应用常见问题及处理方法
    滤袋磨损 滤袋袋口破损 滤袋收缩/烧损 1、滤袋收缩...
  • 关爱大自然还你我请新世界
    一.环境污染问题 虽然八五期间,我国的环境保护取得了明显的成...
  • ZC(LPD)型机械回转反吹扁布袋除尘器
    ZC-Ⅱ/Ⅲ型机械回转反吹扁袋除尘器采用园形体结构受力均匀,爆...
  • 圆筒低压直喷脉冲布袋除尘器LYDZⅡ
    LYDZⅡ型系列圆筒低压直喷脉冲袋式除尘器切向进尘,提高净化和...
  • 布袋除尘器
    布袋除尘器的工作机理是含尘烟气通过过滤材料,尘粒被过滤下来...